Building a Brighter Future in Malaysia

An Orphanage & SEND Training Centre

"Empowering children, shaping teachers and supporting parents."

Darul Hikmah, an orphanage at the heart of Malaysia, has been providing care and shelter to children for over 30 years. Despite its history and the advantage of 12 acres of land, the orphanage is severely underfunded and currently accommodates only 45 orphans and children from impoverished backgrounds. Among them, 13 children have Special Educational Needs and Disabilities (SEND). Our mission is to empower Darul Hikmah to become self-sustaining by generating income through its land. To achieve this, we aim to raise the necessary funds to employ skilled workers who will initially:

    • Conduct farming projects, teaching the orphans valuable skills in agriculture.
    • Lead woodworking workshops, crafting items while equipping the children with practical skills in woodcraft.
    • Implement beekeeping activities, providing education on sustainable beekeeping practices.

  • Further income generation activities will be implemented in due course.

    Building Hope
                      Building Hope


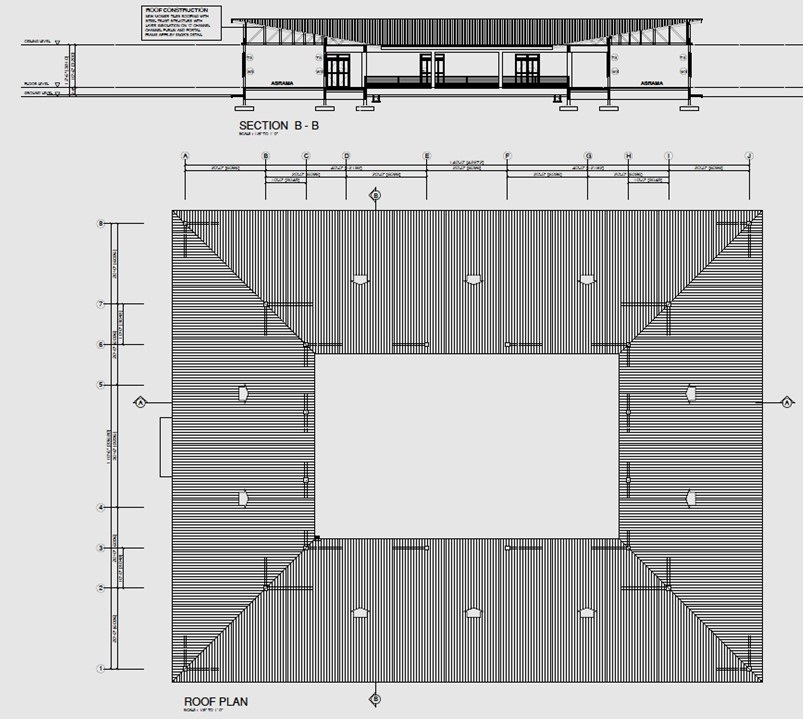
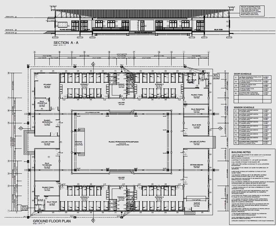
    Architectural Plans for Girls' Dormitory Housing 60 Orphans Building Hope

    Building Hope

    Creating a Foundation of Hope for Girls

    Darul Hikmah has a rich history of supporting children in need. Although it once accommodated girls, financial constraints made this unsustainable, and for many years, it has functioned solely as a center for boys.

    Now, we have a bold vision: to build a dedicated section for girls. This initiative will not only restore opportunities for young girls but also lay the groundwork for a brighter, more inclusive future. As we work to make the entire orphanage self-sustaining, the girls’ section will benefit from these long-term efforts.

    By supporting the construction of this new facility, you are doing far more than building walls—you are creating a foundation of hope, opportunity, and love for children who need it most. This section of the orphanage will be a home where girls can feel safe, valued, and supported, surrounded by an environment that nurtures healing, growth, and learning.

    Building Hope

    Our vision goes beyond providing shelter. We are committed to creating a place where every child, including those with Special Educational Needs and Disabilities (SEND), can thrive. This includes empowering educators with the tools and training to support SEND students, ensuring no child is left behind.

    Together, we can build not just a facility, but a future where all children, regardless of their circumstances, are given the chance to unlock their full potential. Let’s create a world where every child feels the embrace of love and the power of opportunity.


    A Holistic Approach

    One of the most neglected areas in supporting children with Special Educational Needs and Disabilities (SEND) is the lack of resources, training, and emotional support for their parents. Parenting a child with SEND often comes with unique challenges that require specialized guidance, understanding, and community. Our Centre will address this critical gap by providing comprehensive support programs tailored for parents.

    These programs will include practical training on managing specific needs, workshops on educational strategies, and emotional support groups to foster a sense of community and shared understanding. By empowering parents with the skills and knowledge they need, we ensure that SEND children receive consistent care and support, both at home and within the community. Together, this holistic approach will create a nurturing environment where families can thrive.



    Building Hope

    Your Support Matters

    Together, we can make a real difference. Every action you take helps us provide a safe and nurturing environment for children who need it most.

    Get Involved Today
    Ayesha Community Education, UK Charity Reg No: 1121317